Javier Gamero Arquitecto y Asociados
Tfno: 654 401 324
info@javiergameroarquitecto.es
  • Alzado principal.
  • Sección longitudinal.
  • Alzado lateral izquierdo.
  • Sección longitudinal.
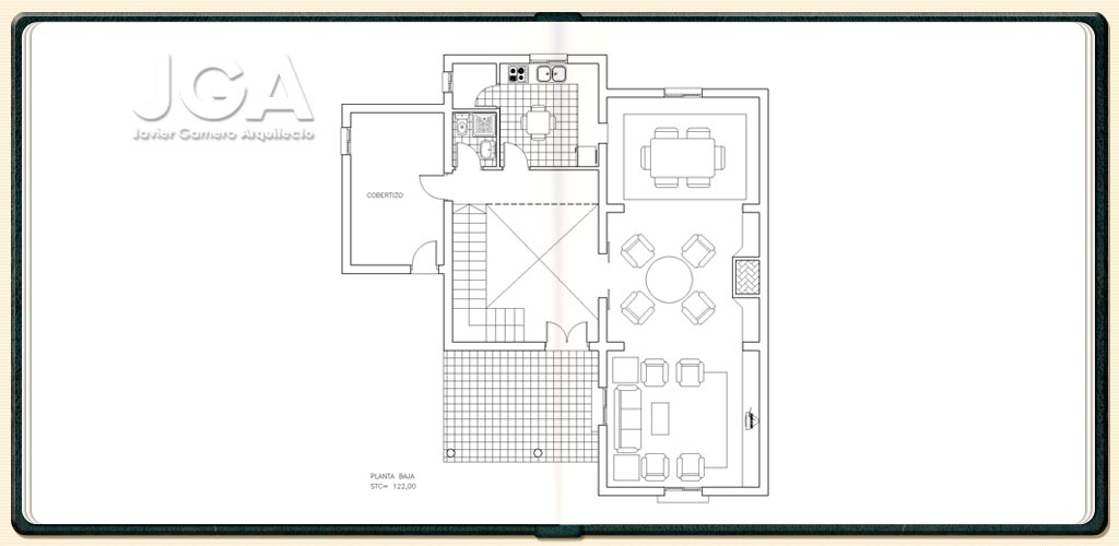
  • Planta.
Alzado principal.1 Sección longitudinal.2 Alzado lateral izquierdo.3 Sección longitudinal.4 Planta.5
HTML5 Picture Gallery by WOWSlider.com v2.5
Casa Eduardo.